فن کویل تهویه کانالی CFM 1400
Tahvieh Ducted Fan Coil AR-14
- ظرفیت حرارتی : 41.43 کیلووات
- ظرفیت برودتی : 17.65 کیلووات
- هوادهی : 1400 CFM
- دبی : 14 گالن بر دقیقه
- توان مصرفی : 250 وات
فن کویل کانالی تهویه مدل AR14 با ابعاد مناسب جهت تعبیه درسقف و تنها در مواردی که فضای لازم جهت کانال کشی در سقف وجود داشته باشد، در دومدل برگشت هوا از پشت و برگشت هوا از زیر، طراحی و تولید شده و قابل استفاده در اماکن مسکونی، اداری، تجاری، مراکز خرید و... میباشد.
در ساخت بدنه ی فن کویل از ورق گالوانیزه مرغوب استفاده شده و جداره ی داخلی آن با عایق الاستومری چسب دارپوشش داده شده است تا علاوه بر جلوگیری از هدر رفت حرارت و برودت، صدای دستگاه نیزکاهش یابد.
موتوراستفاده شده درفن کویل کانالی 1400CFM تهویه دارای محافظ حرارتی است، بطوریکه در زمان افزایش حرارت بیش از حد، دستگاه خاموش شده و پس از خنک شدن، دوباره شروع بکار میکند و این امر دلیل بر افزایش طول عمر دستگاه میشود.
در این فن کویل، فن سانتریفوژ فوروارد تعبیه شده و ازهوزینگ خاصی بهره میبرد که این هوزینگ مختص شرکت تهویه بوده و امکان افزایش سطح هوای خروجی و در نتیجه پوشش دهی سطح بیشتری از کویل را بوجود می آورد.
کویل بکار رفته دراین فن کویل پس از ساخت، چربی زدایی و تست نشتی میشود. کلکتورهای استفاده شده در این کویل ها از جنس برنج بوده وفین های استفاده شده در آن از نوع موج دار بوده که ظرفیت بالایی دارند و نکته ی حائز اهمیت این است که طراحی این کویل ها بگونه ای است که بر روی دستگاه پیچ میشوندو براحتی میتوان آن را باز و بست نمود.
ظرفیت سرمایشی و گرمایشی فن کویل کانالی تهویه 1400CFM
ظرفیت سرمایشی فن کویل کانالی تهویه 1400CFM در بالاترین حالت برابر 16.74 کیلووات، در حالت متوسط 15.66 کیلووات،
در کمترین حالت به میزان 13.87 کیلووات و ظرفیت گرمایش این فن کویل نیز در بالاترین حالت برابر 18 کیلووات، در حالت
متوسط 16.68 کیلووات و در کمترین حالت به میزان 14.86 کیلووات میباشد.
(اعداد درج شده فوق بر اساس شرایط زیر است)
در حالت سرمایش میزان دمای هوای ورودی به فن کویل 27 درجه سانتیگراد خشک و 19 درجه سانتیگراد مرطوب و درحالت
گرمایش برابر 20 درجه سانتیگراد است.
میزان دمای آب ورودی نیز در حالت سرمایش 7 درجه سانتیگراد در زمان ورود و 12 درجه سانتیگراد در زمان خروج بوده و در
زمان گرمایش میزان دمای آب ورودی 50 درجه سانتیگراد میباشد.
برق مصرفی
نوع برق مصرفی 220 ولت ، 50 هرتز و تکفاز بوده، توان ورودی برابر 507 وات و میزان جریان برق در این مدل از فن کویل
2.34 آمپر میباشد.
حجم هوادهی ودبی آب ورودی وافت فشار آب
در فن کویل کانالی تهویه مدل 1400CFM میزان جریان هوا در حالت زیاد 2380 مترمکعب در ساعت، در حالت متوسط 2159 مترمکعب درساعت و در حالت کم 1870 متر مکعب در ساعت، دبی آب ورودی نیز درحالت سرمایش و گرمایش این فن کویل به ترتیب به میزان 48.1 و 26.1 لیتر در ساعت و میزان افت فشار در حالت سرمایش 4.7 و درزمان گرمایش برابر 4.19 کیلوپاسکال میباشد.
میزان شدت صدا فن کویل کانالی تهویه مدل AR14
میزان شدت صدای فن کویل کانالی 1400CFM تهویه در فاصله ی 1 متری دستگاه اندازه گیری شده است که دربالاترین حالت به میزان 65.7 و در حالت متوسط 63.7 و در کمترین حالت 61.3 دسیبل است.
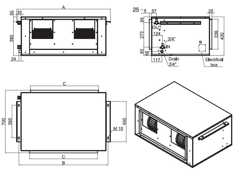
ابعاد و وزن و سایز اتصالات فن کویل کانالی تهویه 1400CFM مدل AR14
عرض مدل برگشت هوا از پشت و زیر 1430 میلیمتر
طول مدل برگشت هوا از پشت 700 میلیمتر
طول مدل برگشت هوا از زیر 1000 میلیمتر
ارتفاع 430 میلیمتر
وزن خالص در مدل برگشت هوا ازپشت 86 کیلوگرم
وزن خالص در مدل برگشت هوا از زیر 95.5 کیلوگرم
سایز لوله های ورودی و خروجی ¾ اینچ



ویژگی های فن کویل کانالی 1400CFM تهویه
استفاده از فیلتربا دوام با قابلیت شستشو و تعویض آسان بدون نیاز به باز کردن کانال
مجهز به محافظ حرارتی جهت حفاظت موتور در برابر بارهای اضافی و افزایش دمای سیم پیچ
استفاده از موتور سه سرعته با توان بالا
دارای شیر هواگیری با کاربری آسان
دسترسی آسان به فن و الکترو موتور جهت انجام سرویس دوره ای
استفاده از ورق گالوانیزه جهت ساخت بدنه وتشت تقطیر
عایق کاری تشت تقطیر و قسمت های داخلی بدنه با عایق الاستومری به ضخامت 4 میلیمتر
قابلیت تولید با کویل های 4 لوله ای ( کویل سرمایشی و گرمایشی مجزا ) بنا به درخواست
قابلیت استفاده از کویل گرمایشی الکتریکی ( در صورت درخواست )
قابلیت تعبیه دریچه هوای تازه ( در صورت درخواست )
- ظرفیت حرارتی : 41.43 کیلووات
- سطح صدا : 59 دسیبل
- ظرفیت برودتی : 17.65 کیلووات
- آمپر مصرفی : 2.34 آمپر
- هوادهی : 1400 CFM
- ابعاد : 1140*1380*1430 میلیمتر
- دبی : 14 گالن بر دقیقه
- وزن : 86 کیلوگرم
- توان مصرفی : 250 وات
- مدل فن کویل : کانالی
- شرکت سازنده ی فن کویل : تهویه
- قابلیت : قابلیت نصب کویل های 3-4 و 6 ردیفه در صورت سفارش - استفاده از ورق های گالوانیزه در بدنه و تشت تقطیر - دارای شیر هواگیری با کاربری آسان - دارای موتور سه سرعته با توان بالا .
- گارانتی : ۱۲ماه
قبل از هرگونه پرداخت وجه و سفارش تجهیزات از موجودی محصول و یا زمان ساخت و تحویل آن اطمینان حاصل نمایید.
- پرداخت حضوری: جهت حفظ آسودگی خاطر مشتریان، پرداخت حضوری قبل از تحویل کالا در محل شرکت بامین تهویه امکان پذیر می باشد.
- پرداخت غیر حضوری: با توجه فواصل مکانی و یا مشغله کاری برخی از مشتریان ، امکان پرداخت غیر حضوری مبلغ کالا به شماره حساب های ارائه شده ، میسر می باشد. این پرداخت پس از حصول اطمینان از موجودی کالا و زمان تحویل از طریق همراه بانک، اینترنت بانک، عابر بانک، و یا انتقال وجه توسط شعب بانک مقدور می باشد.
- پرداخت در محل: فروشگاه بامین تهویه این امکان را برای مشتریان ساکن تهران فراهم ساخته که اجناس با ارزش کمتر از ۵/۰۰۰/۰۰۰ ریال را بصورت پرداخت در محل پس از تحویل کالا، خریداری نمایند.
دیدگاهی یافت نشد!

