فن کویل کاستی چهارطرفه تهویه ستاره مدل ST 500
Tahvieh Four Way Star Cassette FanCoil ST 500
- ظرفیت حرارتی : 5.61 کیلووات
- دبی آب گرمایش : 8.1 لیتر بر دقیقه
- دبی آب سرمایش : 16.28 لیتر بر دقیقه
- هوادهی : 500 CFM
- ظرفیت برودتی : 6.15 کیلووات
- کنترل : ندارد
فن کویل کاستی چهارطرفه تهویه مدل ستاره ST 500 با ابعاد مناسب جهت تعبیه در انواع سقف کاذب تولید شده و قابل استفاده در اماکن مسکونی، اداری، تجاری، مراکز خرید و... میباشد.
در ساخت بدنه ی این فن کویل ها از ورق گالوانیزه مرغوب استفاده شده و جداره ی داخلی آن با عایق EPS و از عایق ضد کندانس جهت پوشش بدنه ی خارجی آن استفاده شده است و بنا به تقاضا، امکان این وجود دارد از عایق الاستومری استفاده شود تا علاوه بر جلوگیری از هدر رفت حرارت و برودت، صدای دستگاه نیز کاهش یابد.
موتوراستفاده شده دراین فن کویل دارای محافظ حرارتی است، بطوریکه در زمان افزایش حرارت بیش از حد، دستگاه خاموش شده و پس از خنک شدن، دوباره شروع بکار میکند و این امر دلیل بر افزایش طول عمر دستگاه میشود.
درفن کویل کاستی 4 طرفه ستاره 500CFM، فن سانتریفوژ بکوارد با کمترین سطح صدای ممکن تعبیه شده و دلیل این عملکرد با صدای کم، استفاده از لرزه گیرلاستیکی در قسمت اتصال پره ها به شفت موتور میباشد.
کویل بکار رفته دراین فن کویل تهویه پس از ساخت، چربی زدایی و تست نشتی میشود. فین های استفاده شده در این کویل ها از نوع موج دار است که ظرفیت بالاتری دارند و کلکتورهای این کویل ها از جنس برنج بوده و نکته ی حائز اهمیت این است که طراحی آن بگونه ای است که بر روی دستگاه پیچ میشوندو براحتی میتوان آن را بوسیله ی یک عدد آچار باز و بست نمود.
فن کویل کاستی چهار طرفه ستاره مدل ST 500 تهویه دارای پمپ درین میباشد که آب کندانس تا ارتفاع 65 سانتی متر را تخلیه میکند و با توجه به وجود شیر یکطرفه در این پمپ از برگشت آب تخلیه به داخل دستگاه جلوگیری میشود. طراحی این پمپ به گونه ای است که ریزش احتمالی آب از داخل دستگاه به بیرون وجود نداشته و شلنگ های تخلیه آب کندانس نیز از جنس EPDM انتخاب شده تا در برابر تغییرات دمایی از مقاومت بالایی برخوردار باشند.
ظرفیت سرمایشی و گرمایشی فن کویل کاستی چهار طرفه ستاره 500 CFM
ظرفیت سرمایشی فن کویل کاستی چهار طرفه تهویه CFM 500 در بالاترین حالت برابر 6.15 کیلووات، در حالت متوسط 4.78 کیلووات، در کمترین حالت به میزان 3.78 کیلووات و ظرفیت گرمایش این فن کویل نیز در بالاترین حالت برابر 5.61 کیلووات، در حالت متوسط 4.16 کیلووات و در کمترین حالت به میزان 3.23 کیلووات میباشد.
( اعداد درج شده فوق بر اساس شرایط زیراست )
در حالت سرمایش میزان دمای هوای ورودی به فن کویل 27 درجه سانتیگراد خشک و 19 درجه سانتیگراد مرطوب و درحالت
گرمایش برابر 20 درجه سانتیگراد است.
میزان دمای آب ورودی نیز در حالت سرمایش 7 درجه سانتیگراد در زمان ورود و 12 درجه سانتیگراد در زمان خروج بوده و در
زمان گرمایش میزان دمای آب ورودی 50 درجه سانتیگراد میباشد.
برق مصرفی
نوع برق مصرفی 220 ولت، 50 هرتز و تکفاز بوده، توان ورودی برابر 56 وات و میزان جریان برق در این مدل از فن کویل
0.25 آمپر میباشد.
حجم هوادهی ودبی آب ورودی وافت فشار آب
در فن کویل کاستی چهار طرفه ستاره مدل ST 500 برند تهویه میزان جریان هوا در حالت زیاد به میزان 850 مترمکعب در ساعت، در حالت متوسط 590 مترمکعب در ساعت و در حالت کم 440 متر مکعب در ساعت، دبی آب ورودی نیز درحالت سرمایش و گرمایش این فن کویل به ترتیب به میزان 16.28 و 8.1 لیتر در ساعت و میزان افت فشار در حالت سرمایش 29 و درزمان گرمایش برابر 6.88 کیلو پاسکال میباشد.
میزان شدت صدا فن کویل کاستی چهار طرفه ستاره مدل ST 500 تهویه
میزان شدت صدای فن کویل کاستی چهار طرفه تهویه مدل 500 CFM در فاصله ی 1 متری دستگاه اندازه گیری شده است که دربالاترین حالت به میزان 47 و در حالت متوسط 42 و در کمترین حالت 34.3 دسیبل است.

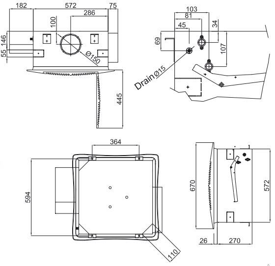
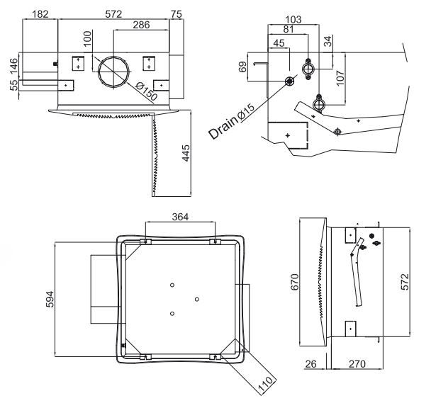
ابعاد، وزن و سایز اتصالات فن کویل کاستی چهار طرفه ستاره 500CFM برند تهویه
عرض 527 میلیمتر
طول 527 میلیمتر
ارتفاع 270 میلیمتر
وزن خالص 22 کیلوگرم
سایز لوله های ورودی و خروجی 3/4 اینچ

ویژگی های فن کویل کاستی چهارطرفه ستاره برند تهویه 500 CFM
استفاده از فیلتر با قابلیت شستشو، با دوام و تعویض آسان
قاب ساخته شده از مواد ABS مقاوم
دارای تشت تقطیر داخلی عایق کاری شده با عایق EPS
دارای تشت تقطیر بیرونی جهت جمع آوری آب کندانس اتصالات از جنس ABS
عایق کاری کامل داخل و خارج بدنه با فشردگی بالا
(عایق کاری داخل بدنه با عایق EPS به ضخامت 10 میلی متر و عایق ضد کندانس با ضخامت 2 میلی متربرای خارج بدنه)
در صورت درخواست مشتری امکان استفاده از عایق الاستومری نیز میباشد.
دارای ابعاد مناسب و قابل نصب در سقف کاذب
دارای چهار حالت کارکرد به صورت فن، سرمایش، گرمایش و اتوماتیک
مجهز به پمپ سانتریفوژ جهت تخلیه آب کندانس کویل
دارای کویل گرد جهت یکنواختی هوای خروجی و افزایش ظرفیت برودتی و حرارتی و کاهش افت فشار هوا
امکان تولید به صورت 4 لوله ای) کویل سرمایشی و گرمایشی مجزا در صورت سفارش مشتری)
دارای سنسور دمای آب کویل
مجهز به شیر یکطرفه جهت جلوگیری از برگشت آب کندانس به داخل دستگاه
دارای سه سرعت استاندارد با سطح صدای پایین
مجهز به شیر هواگیری
دسترسی آسان به فن و الکترو موتور جهت انجام سرویس دوره ای
استفاده از ورق گالوانیزه مرغوب جهت ساخت بدنه داخلی
- ظرفیت حرارتی : 5.61 کیلووات
- قطر لوله : 3/4 اینچ
- توان ورودی : 56 وات
- تعداد فن : 1
- نوع فن : سانتریفوژ فوروارد
- افت فشار آب : گرمایش : 6.88 کیلو پاسکال
- افت فشار آب : سرمایش : 29 کیلو پاسکال
- گارانتی : ۱۲ماه
- دارای : دریچه ورود هوای تازه، دریچه جهت انشعاب هوای خروجی،تشت تقطیر داخلی عایق کاری شده با عایق EPS،موتور تک فاز با سه سرعت استاندارد،فیلتر با قابلیت شستشو وتعویض بسیار آسان،کویل گرد جهت یکنواختی هوای خروجی و افزایش ظرفیت برودتی و حرارتی و کاهش افت فشار هوا،تشت تقطیر بیرونی جهت جمع آوری آب کندانس اتصالات از جنس ABS .
- قابلیت : تو لید در ظرفیت های متفاوت .
- مدل فن کویل : کاستی چهار طرفه
- وزن : 22 کیلوگرم
- جریان : 0.25 آمپر
- سطح صدا : 47 دسیبل
- دبی آب گرمایش : 8.1 لیتر بر دقیقه
- دبی آب سرمایش : 16.28 لیتر بر دقیقه
- هوادهی : 500 CFM
- ظرفیت برودتی : 6.15 کیلووات
- شرکت سازنده ی فن کویل : تهویه
- مجهز به : محافـظ حرارتی جهت حفاظت موتور در برابـر بارهای اضافی و دمای بیش از حد سیم پیچ .
- جنس بدنه : گالوانیزه
- ویژگی ها : ظاهری زیبا و دکوراتیو،سطح صدای بسیار پایین،قاب ساخته شده از مواد ABS مقاوم و زیبا،عایق کاری کامل داخل و خارج بدنه با فشردگی بالا،امکان تولید به صورت ۴ لوله ای،استفاده از لرزه گیر زیر پایه های موتور جهت کاهش صدا وارتعاشات .
- کنترل : ندارد
قبل از هرگونه پرداخت وجه و سفارش تجهیزات از موجودی محصول و یا زمان ساخت و تحویل آن اطمینان حاصل نمایید.
- پرداخت حضوری: جهت حفظ آسودگی خاطر مشتریان، پرداخت حضوری قبل از تحویل کالا در محل شرکت بامین تهویه امکان پذیر می باشد.
- پرداخت غیر حضوری: با توجه فواصل مکانی و یا مشغله کاری برخی از مشتریان ، امکان پرداخت غیر حضوری مبلغ کالا به شماره حساب های ارائه شده ، میسر می باشد. این پرداخت پس از حصول اطمینان از موجودی کالا و زمان تحویل از طریق همراه بانک، اینترنت بانک، عابر بانک، و یا انتقال وجه توسط شعب بانک مقدور می باشد.
- پرداخت در محل: فروشگاه بامین تهویه این امکان را برای مشتریان ساکن تهران فراهم ساخته که اجناس با ارزش کمتر از ۵/۰۰۰/۰۰۰ ریال را بصورت پرداخت در محل پس از تحویل کالا، خریداری نمایند.
دیدگاهی یافت نشد!
