منو
فن کویل تهویه آریا سقفی توکار400cfm

فن کویل تهویه آریا سقفی توکار400cfm

Tahvieh Arya Horizontal Ceiling Mounted Concealed Fan Coil 400cfm

  • هوادهی : 400 فوت مکعب بر دقیقه
  • ظرفیت برودتی : 15400 بی تی یو برساعت
  • ظرفیت حرارتی : 38750 بی تی یو بر ساعت
قیمت استعلام از واحد فروش

  • هوادهی : 400 فوت مکعب بر دقیقه
  • وزن : 27 کیلوگرم
  • ظرفیت برودتی : 15400 بی تی یو برساعت
  • تعداد موتور : 1
  • ظرفیت حرارتی : 38750 بی تی یو بر ساعت
  • توان موتور : 45 وات
  • آمپر مصرفی : 0.65 آمپر
  • سطح کویل : 1.63 فوت مربع
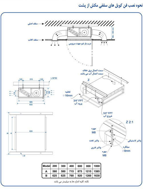
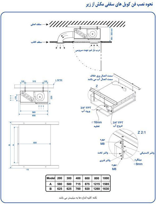
  • ابعاد : طول 760 میلیمتر
  • ابعاد : عرض 610 میلیمتر
  • ابعاد : ارتفاع 245 میلیمتر
  • ظرفیت نامی فن کویل : 400cfm
  • مدل فن کویل : سقفی توکار
  • شرکت سازنده ی فن کویل : تهویه آریا

قبل از هرگونه پرداخت وجه و سفارش تجهیزات از موجودی محصول و یا زمان ساخت و تحویل آن اطمینان حاصل نمایید.

  • پرداخت حضوری: جهت حفظ آسودگی خاطر مشتریان، پرداخت حضوری قبل از تحویل کالا در محل شرکت بامین تهویه امکان پذیر می باشد.
  • پرداخت غیر حضوری: با توجه فواصل مکانی و یا مشغله کاری برخی از مشتریان ، امکان پرداخت غیر حضوری مبلغ کالا به شماره حساب های ارائه شده ، میسر می باشد. این پرداخت پس از حصول اطمینان از موجودی کالا و زمان تحویل از طریق همراه بانک، اینترنت بانک، عابر بانک، و یا انتقال وجه توسط شعب بانک مقدور می باشد.
  • پرداخت در محل: فروشگاه بامین تهویه این امکان را برای مشتریان ساکن تهران فراهم ساخته که اجناس با ارزش کمتر از ۵/۰۰۰/۰۰۰ ریال را بصورت پرداخت در محل پس از تحویل کالا، خریداری نمایند.

دیدگاه خود را با ما درمیان بگذارید