فن کویل تهویه آریا سقفی توکار1000cfm
Tahvieh Arya Horizontal Ceiling Mounted Concealed Fan Coil 1000cfm
- هوادهی : 1000 فوت مکعب بر دقیقه
- ظرفیت برودتی : 30500 بی تی یو برساعت
- ظرفیت حرارتی : 75000 بی تی یو بر ساعت
قیمت استعلام از واحد فروش
- هوادهی : 1000 فوت مکعب بر دقیقه
- وزن : 54 کیلوگرم
- ظرفیت برودتی : 30500 بی تی یو برساعت
- تعداد موتور : 2
- ظرفیت حرارتی : 75000 بی تی یو بر ساعت
- توان موتور : 45*2 وات
- آمپر مصرفی : 1.3 آمپر
- سطح کویل : 3.17 فوت مربع
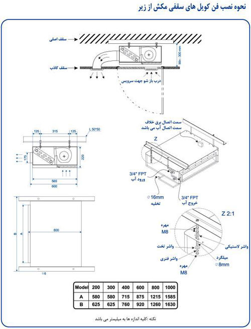
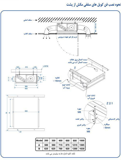
- ابعاد : طول 1630 میلیمتر
- ابعاد : عرض 610 میلیمتر
- ابعاد : ارتفاع 245 میلیمتر
- ظرفیت نامی فن کویل : 1000cfm
- مدل فن کویل : سقفی توکار
- شرکت سازنده ی فن کویل : تهویه آریا
قبل از هرگونه پرداخت وجه و سفارش تجهیزات از موجودی محصول و یا زمان ساخت و تحویل آن اطمینان حاصل نمایید.
- پرداخت حضوری: جهت حفظ آسودگی خاطر مشتریان، پرداخت حضوری قبل از تحویل کالا در محل شرکت بامین تهویه امکان پذیر می باشد.
- پرداخت غیر حضوری: با توجه فواصل مکانی و یا مشغله کاری برخی از مشتریان ، امکان پرداخت غیر حضوری مبلغ کالا به شماره حساب های ارائه شده ، میسر می باشد. این پرداخت پس از حصول اطمینان از موجودی کالا و زمان تحویل از طریق همراه بانک، اینترنت بانک، عابر بانک، و یا انتقال وجه توسط شعب بانک مقدور می باشد.
- پرداخت در محل: فروشگاه بامین تهویه این امکان را برای مشتریان ساکن تهران فراهم ساخته که اجناس با ارزش کمتر از ۵/۰۰۰/۰۰۰ ریال را بصورت پرداخت در محل پس از تحویل کالا، خریداری نمایند.
